Descrizione
MONTEGROTTO TERME Proponiamo in vendita una recentissima porzione di villa in trifamiliare, situata a pochi passi dal centro della cittadina termale.
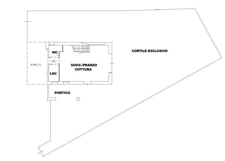
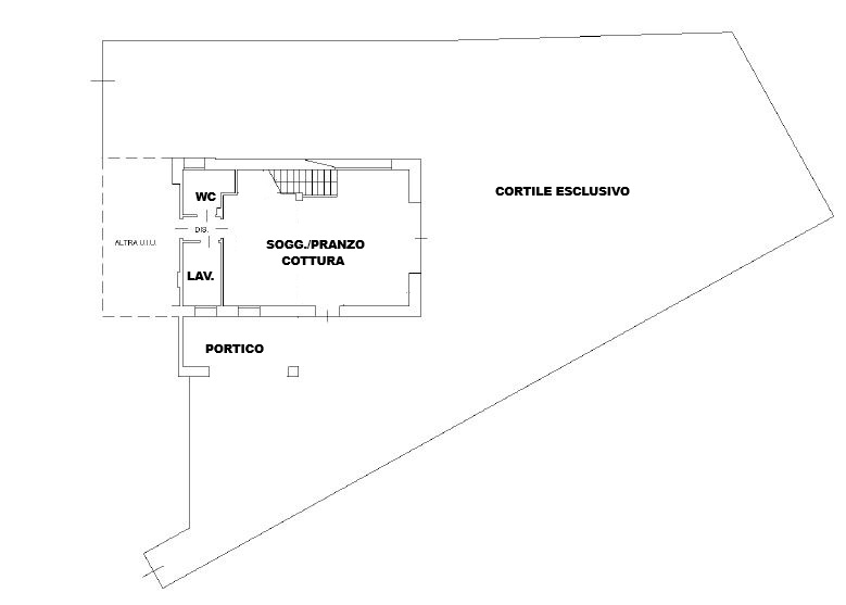
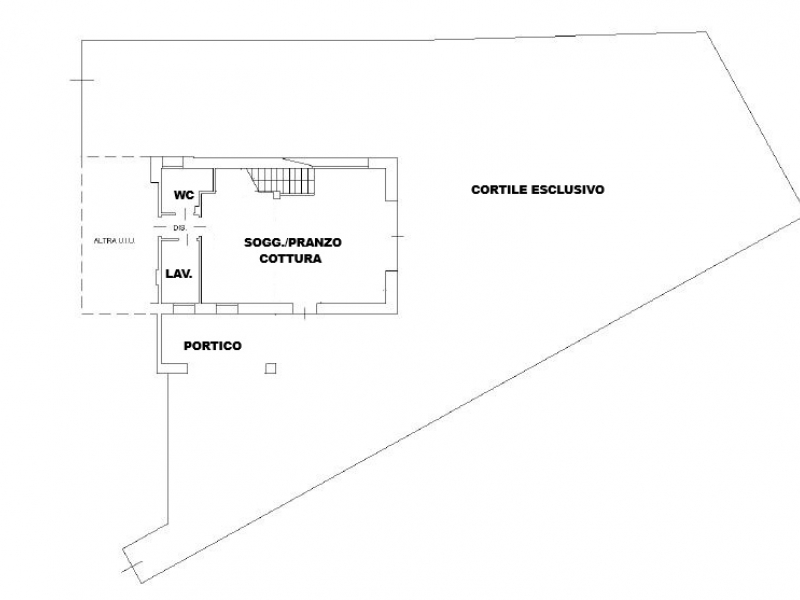
Questa proprietà si distingue per le prestigiose finiture e gli spazi ben progettati che la rendono ideale per famiglie alla ricerca del comfort. Al piano terra troverete una comoda zona living con cucina a vista e con accesso al giardino esclusivo di circa 800 mq con porticato attrezzato perfetto per momenti di relax o cene all’aperto, bagno, lavanderia e collegamento diretto al garage.
Al primo piano è ubicata la zona notte che include tre stanze, un bagno padronale, una loggia ed un comodissimo terrazzo esposto a sud.
A completamento della soluzione proposta due posti auto coperti oltre a due casette in legno adibite a ripostiglio e ricovero attrezzi.
La casa è ottimamente mantenuta; tra le dotazioni troviamo impianto di riscaldamento a pavimento, impianto fotovoltaico da 3 kwh, predisposizione aria condizionata ed allarme. Le finestre sono equipaggiate con zanzariere mentre tende da sole offrono ombra durante l’estate. Classe Energetica A4
Non perdere assolutamente questa opportunità unica! Invitiamo gli interessati a prenotare subito il proprio appuntamento presso la nostra agenzia per un incontro informativo. Saremo lieti di offrirti tutte le informazioni necessarie!
Rif.: M027
I.P.E. 24.76 kWh/m2anno


