Descrizione
In prossimità del centro storico di Abano Terme, situato in un quartiere signorile e ben servito, proponiamo in vendita un esclusivo attico di circa 150 mq. Questa splendida proprietà si sviluppa su un unico livello e offre una qualità della vita senza pari.
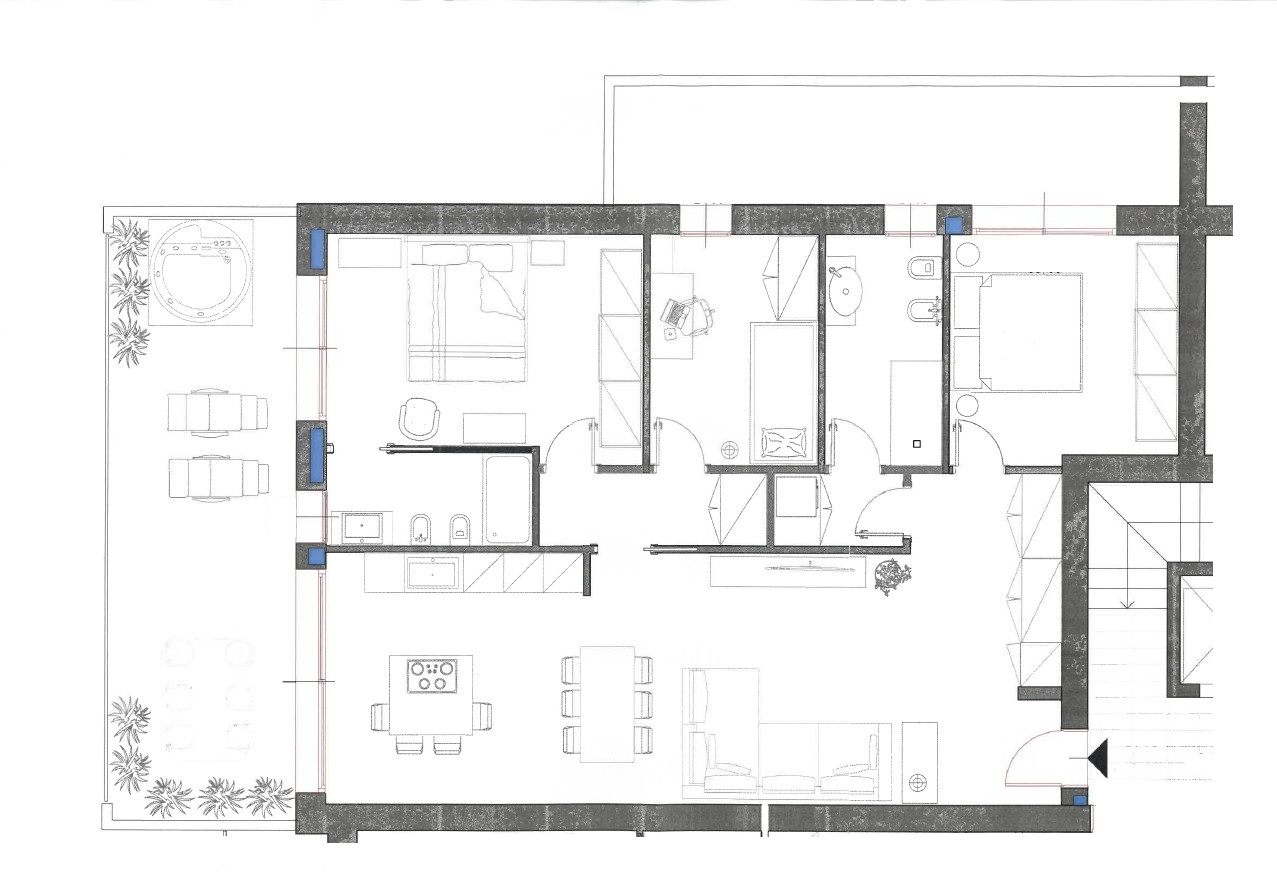
All’ingresso, sarete accolti da un ampio soggiorno open space di circa 50 mq, caratterizzato da una cucina a vista e da vetrate panoramiche che conducono al primo grande terrazzo abitabile; il luogo ideale per rilassarsi o intrattenere gli amici all’aperto. La zona giorno è perfettamente illuminata dalla luce naturale grazie alla sua esposizione favorevole.
La disposizione degli spazi interni include una camera matrimoniale versatile che può essere facilmente trasformata in una cucina abitabile con accesso diretto al secondo terrazzo. Completano l’abitazione due bagni finestrati: uno dedicato alla camera matrimoniale principale dotata di bagno privato spazioso, l’altro completo per la comodità delle camere aggiuntive.
Troverete anche una terza comoda camera singola, oltre a ripostiglio/lavanderia funzionale per soddisfare tutte le vostre esigenze quotidiane. Ulteriormente valorizzato da un garage al piano terra e posto auto esterno riservato.
L’ubicazione è strategica: vicino ai rinomati stabilimenti termali di Abano Terme ed immersa nel verde dei colli Euganei, questa area offre non solo tranquillità ma anche numerosi servizi come negozi locali, ristoranti gourmet e mezzi pubblici efficienti.
Con classe energetica A4 garantisce efficienza energetica elevata contribuendo così a ridurre i costi sulle bollette!
Non perdere quest’opportunità unica! Contatta subito la nostra agenzia immobiliare per maggiori informazioni o per prenotare una visita.
Rif. M032
I.P.E. 0.00 kWh/m2anno
