Descrizione
Situato tra le zone di Treponti e Villa di Teolo, ai piedi dei Colli Euganei ed in adiacenza alla strada provinciale di forte passaggio, proponiamo in vendita storico complesso artigianale ideale per attività di tessili e manifatturiere o per riconversione in altre attività produttive e commerciali.
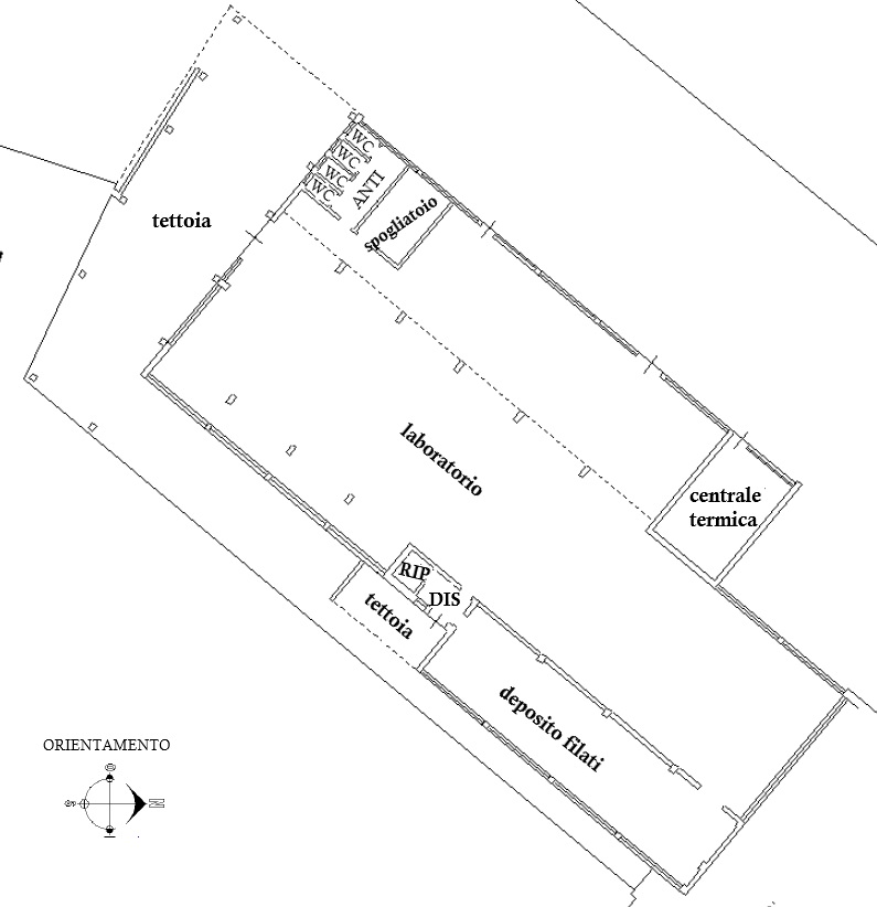
La proprietà è recintata e l’accesso è garantito tramite apposito cancello. Il fabbricato è sviluppato interamente su due piani fuori terra ed è così suddiviso:
AREA COMMERCIALE:
la parte dedicata alla vendita dei prodotti aziendali. Il negozio/spaccio misura circa mq 470, si affaccia su strada ed è ideale per la vendita diretta al pubblico. All’ingresso si trova un pergolato, chiuso entro due fronti in pietra a vista. Al piano terra, locale open-space con ampia vetrata che garantisce illuminazione naturale per gran parte della giornata e bagno di servizio. Al piano primo, accessibile dalla scala interna, è disposto uno spazio direzionale dedicato ad uffici ben organizzati con bagno finestrato. Un ufficio vanta inoltre di uscita su veranda esterna. Quest’area è comodamente collegata sul retro con il laboratorio artigianale e magazzini.
AREA ARTIGIANALE:
è estesa unicamente al piano terra e vanta di una superficie commerciale di circa mq 688. È costituita da spazioso laboratorio per la lavorazione e trasformazione di materiali, attività manifatturiera e confezionamento. Vanta di comode aperture laterali sull’area del parcheggio, per favorire il carico e lo scarico merci.
AREA MAGAZZINI:
due magazzini al piano terra, utili per lo stoccaggio delle materie prime e dei prodotti finiti. Questi ambienti hanno una superficie commerciale di circa mq 420.
AREA ESTERNA:
ampio spazio di manovra in ghiaino, utile per essere dedicato a parcheggi per i collaboratori e clienti.
Il fabbricato è stato oggetto di interventi di ampliamento e ristrutturazione nel 2004 ed è servito da impianto elettrico, di raffrescamento, ventilazione meccanica ed aria compressa.
Rif.: B182
I.P.E. 0.00 kWh/m3anno


