Descrizione
A Baone, nella suggestiva zona di Valle San Giorgio, proponiamo in vendita terreno edificabile inserito nello straordinario contesto dei Colli Euganei – Patrimonio Unesco, ideale per chi desidera realizzare una nuova abitazione indipendente immersa nella natura.
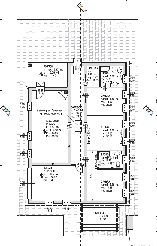
Il lotto è già dotato di permesso di costruire per la realizzazione di un fabbricato residenziale indipendente, come da progetto approvato, soluzione ideale per chi cerca un terreno già pronto per costruire, evitando le incertezze tipiche della fase autorizzativa.
CARATTERISTICHE DEL PROGETTO:
• Fabbricato residenziale separato e indipendente;
• Soggiorno con angolo cottura, tre camere (di cui una adibita a studio), due bagni, lavanderia e garage;
• Sviluppo su piano terra, monolivello, con distribuzione funzionale degli spazi;
• Architettura coerente con il contesto rurale e collinare;
• Progetto pensato per integrarsi armoniosamente nel paesaggio dei Colli Euganei;
CONTESTO:
La posizione garantisce privacy, tranquillità e vista aperta sul paesaggio collinare, con facile accesso ai principali percorsi escursionistici e naturalistici della zona. Un contesto di grande valore ambientale e paesaggistico, riconosciuto a livello internazionale.
PUNTI DI FORZA:
– Terreno edificabile con permesso di costruire già rilasciato
– Progetto residenziale definito e pronto allo sviluppo
– Inserito nei Colli Euganei – Patrimonio Unesco
– Ideale per abitazione principale o seconda casa di pregio
Soluzione particolarmente indicata per chi desidera costruire una casa su misura, in un contesto naturale esclusivo, con tempi e rischi urbanistici fortemente ridotti.
Contattaci per ricevere il progetto completo o per maggiori informazioni.
Rif. B161-B
I.P.E. 0.00 kWh/m2anno
