Descrizione
Situata in una zona strategica ma tranquilla di Abano Terme, al confine con Montegrotto, proponiamo in vendita una elegante porzione di villa trifamiliare di recente costruzione, perfetta sintesi tra design moderno ed elevata efficienza energetica.
L’abitazione è stata studiata per offrire elevati livelli di comfort abitativo, con finiture di pregio curate in ogni dettaglio, ed è così composta:
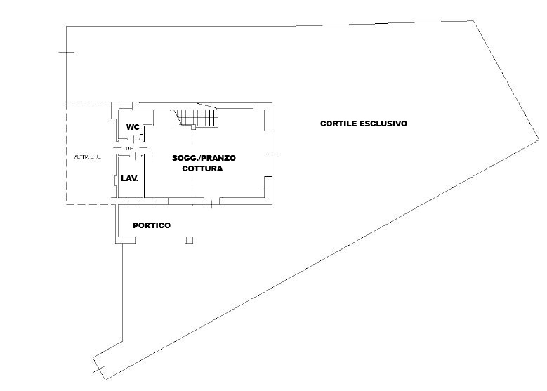
PIANO TERRA: Ampia zona living con cucina a vista e soggiorno luminoso con accesso diretto al giardino privato . Completano il piano un comodo bagno, lavanderia, ripostiglio ed un disimpegno con accesso diretto al garage.
PIANO PRIMO: La zona notte ospita tre camere da letto luminose, un bagno padronale, una loggia e un ampio terrazzo esposto a sud, perfetto per godere della luce naturale durante tutto l’anno.
PLUS TECNICI: L’immobile si presenta in condizioni impeccabili ed è dotato di tecnologie moderne per il risparmio energetico e la sicurezza: riscaldamento a pavimento, impianto fotovoltaico da 3 kW, predisposizione per aria condizionata e sistema d’allarme, zanzariere su tutti gli infissi e tende da sole per la stagione estiva.
SPAZI ESTERNI: Giardino privato di circa 800 mq impreziosito da un porticato attrezzato, ideale per pranzi e cene all’aperto e una pratica casetta in legno, ideale come ripostiglio o ricovero attrezzi. Completano la proprietà un garage ed un posto auto coperto.
Soluzione ideale per chi desidera vivere in un ambiente elegante, moderno ed efficiente, senza rinunciare alla tranquillità e agli ampi spazi esterni.
Rif.: M027
I.P.E. 24.76 kWh/m2anno


